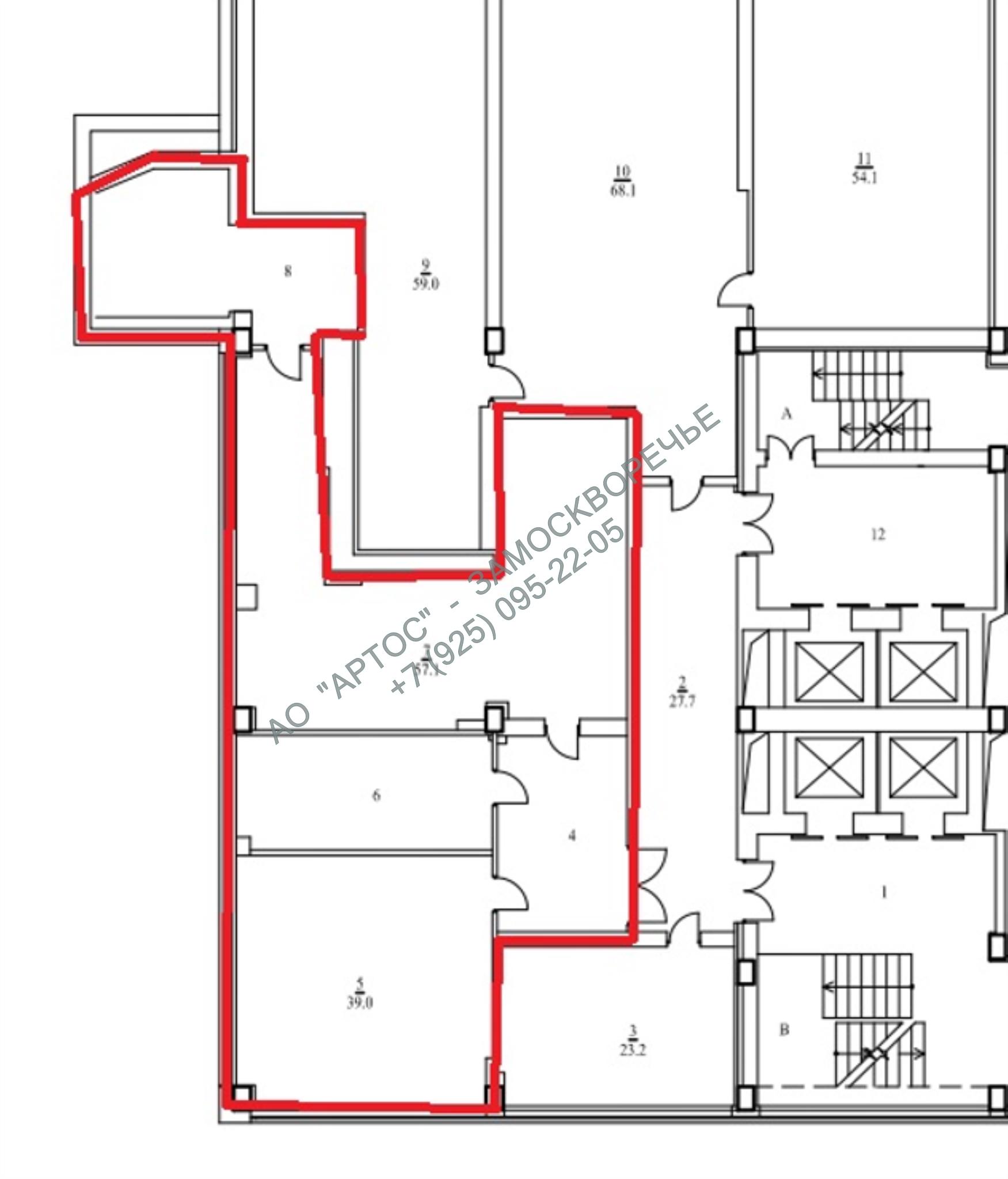
Офис 148.5 кв.м.

Адрес: г. Москва, ул. Б. Татарская д. 35 стр. 3. (Общая площадь здания 21 600 кв.м.)

  • Помещение кабинетного типа расположено на 5 этаже 12-ти этажного здания.
  • Функциональный офис в современной отделке.
  •   Офис оборудован современной системой приточно-вытяжной вентиляцией с кондиционированием. 
  • Площадь: 148,5 кв.м.
    Ставка: 40 000 руб. кв.м./год ( 495 000,00   руб./ мес. в т.ч. НДС )
    Этаж: 5 из 12
Адрес
ул. Большая Татарская, 35 стр.3
Метро
Павелецкая
Общая площадь
148 м2
Тип помещения
Офис
Этаж/этажность
5
495 000 р./мес.
АРЕНДОВАТЬ
Услуги
  • В бизнес-центре организованы служба пропускного режима и система дежурной администрации;
  • КПП и видеонаблюдение;
  • Установлена система пожарной сигнализации;
  • Современные системы приточно-вытяжной вентиляции и кондиционирования;
  • Клининговые услуги – качественная уборка офисов и мест общего пользования;
  • Вывоз мусора и твердых бытовых отходов;
  • Телекоммуникационные услуги представлены специализированными компаниями, поставляющими услуги цифровой телефонной связи и высокоскоростного доступа в сеть Интернет;
  • Парковка на территории БЦ.
Условия аренды

В стоимость включены:

  • Коммунальные услуги;
  • Техническое обслуживание здания;
  • Уборка помещений общего пользования;

Оплачивается отдельно:

  • Интернет / Телефония;
  • Парковка;
  • Электроэнергия;
Похожие предложения